top of page


BROADMEAD MOULDS
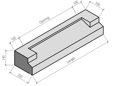
Broadmead Renaissance Cast Stone specialise in bespoke architectural cast stone in the wet cast method of production. Broadmead offers a complete package from assistance with initial design, through to detailing and installation of materials with their own fixing team. Based in Sittingbourne Kent, Broadmead are ideally placed to service the South East and London markets, export to Europe, the channel islands and the rest of the UK.
To view our services please click here
Our standard Wet Cast mixes are illustrated below, special mixes available on request
bottom of page





















